Bratislava
2019-2020 • realizácia
Fotografie: Lenka Némethová
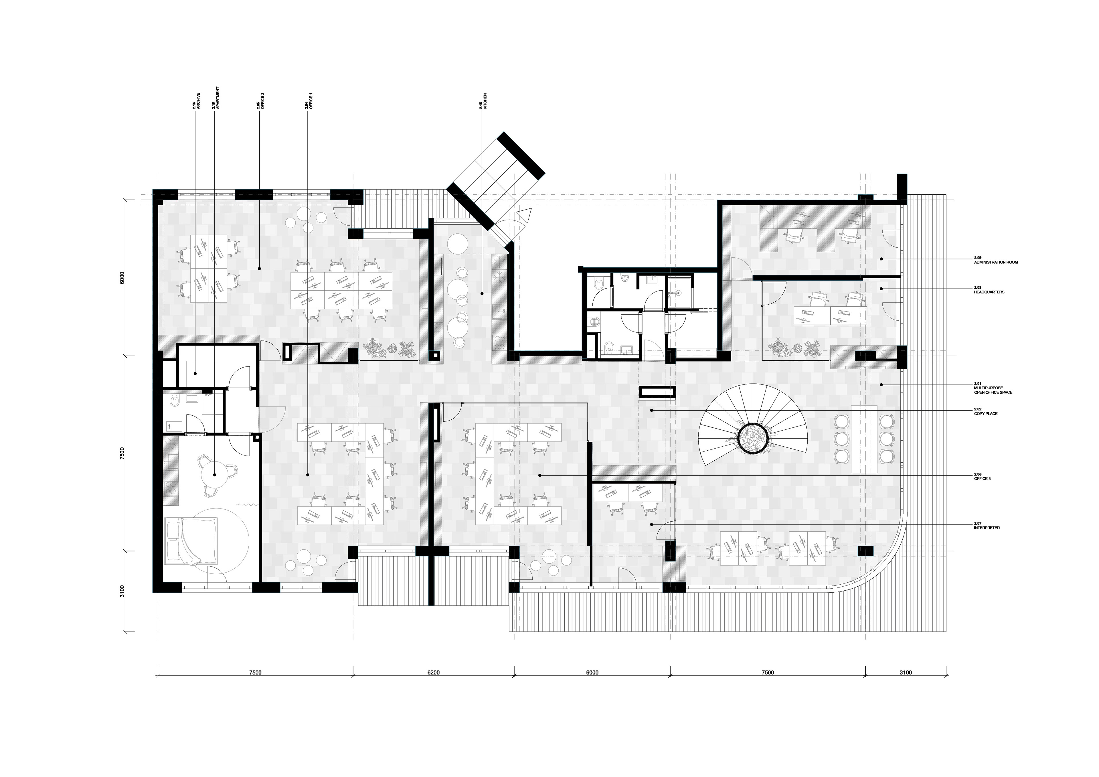
Dvojpodlažné kancelárske priestory si po zmene majiteľa vyžiadali kompletnú rekonštrukciu. Zadaním bolo otvoriť a presvetliť pôvodný stiesnený priestor, rozbitý množstvom stavebne oddelených kancelárií a chodieb. Súčasne s maximálnym využitím priečok jasne definovať jednotlivé funkčné celky.  Vizuálna identita firmy sa premieta do extrahovanej farebnosti s dominantnou čiernou a červenou farbou. Otvorenie priestoru oboch fasád umožnilo použitie tmavých odtieňov drevených obkladov na veľkých plochách. 
Koncept fungovania prieskumnej agentúry - zber surových dát, ich spracovanie a výsledok v podobe jasných a zrozumiteľných dát - charakterizujú v priestore podobne tri druhy materiálov. Surové betónové konštrukcie ako východiskový prvok, morená smreková biodoska ako spracovaný prírodný materiál a jasné červené plochy ako precízne akcenty funkčných prvkov. Minimálne zastúpenie voľného mobiliáru je doplnené zeleňou, ktorá v miestach presklených stien čiastočné vizuálne oddeľuje pracovné miesta a nahrádza zaužívané polepy. Súčasne do priestoru s výraznou kontrastnou farebnosťou vnáša ľudskú mierku.
Back to Top