spolupráca: Katarína Siváková
2022
Záplava rodinných domov v prímestských častiach, obciach a extraviláne na Slovensku zrkadlí túžbu po individuálnom bývaní ako aj naplnenie celoživotného sna o spokojnom živote v obklopení zeleňou. Pre mnohých vlastný rodinný dom stále predstavuje slobodu a možnosť zušľachtenia svojho kúsku pôdy, ktorú si zadovážili a reflektujú v ňom svoju osobnosť. Najzásadnejším momentom je zakotvenie na jednom mieste a vytvorenie osobitých sociálnych väzieb a kontaktov v blízkom okolí. Priamy kontakt s prírodou je hnacím motorom pre ľudí, ktorí sa rozhodnú investovať do bývania v rodinnom dome.

Svojpomocná výstavba typizovaných domov v 70. rokoch však uškodila tomuto fenoménu v nemalej miere. Nekvalitné stavebné postupy, ako aj laické dispozičné zásahy vytvorili mnoho genericky sa opakujúcich rodinných domov, ktoré po dekádach nenaplnili očakávania svojich užívateľov. Aj neskôr, vo väčšine katalógových domov sa dosiahlo prepojenie s exteriérom len z jednej obytnej miestnosti. Táto nelichotivá bilancia nás donútila uvažovať o koncepcii domu ako takého. Nedávna nečakaná pandemická situácia priviedla ľudí k otázke: Ako žiť zdravý život? a Ako bývať v prostredí, ktoré si sami vytvárame?
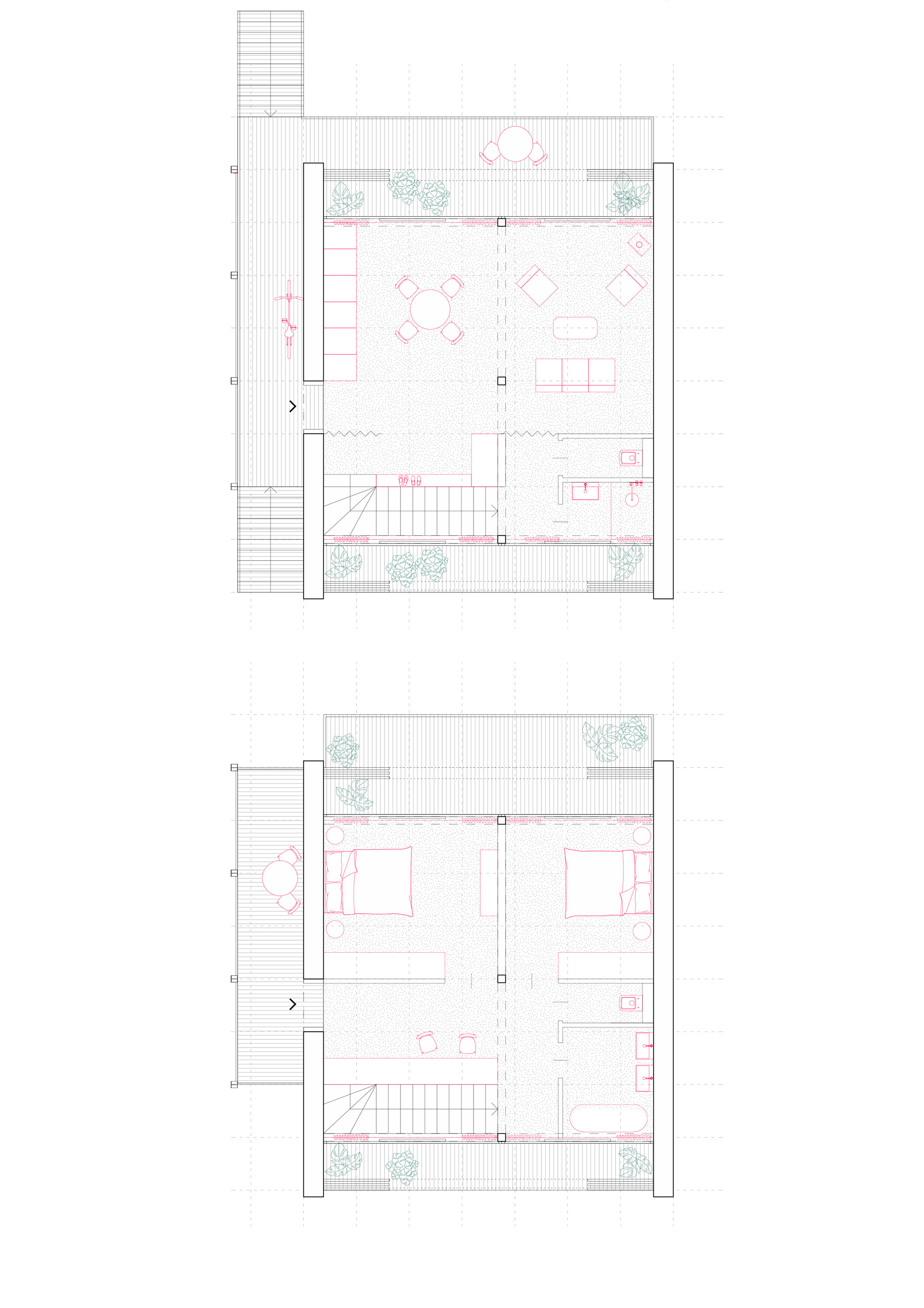
Naše životy sú dnes prevažne strávené v interiéri no stále máme vnútornú potrebu obracať sa viac a viac ku koreňom v spätí s prírodou. Našou snahou je zmiernenie tohto aspektu použitím vhodných materiálov, nastavením dispozície tak, aby zabezpečovala čo možno najoptimálnejšie vizuálne a fyzické prepojenie s exteriérom.

Ďalší fenomén, ktorý vidíme v podpore Plánu obnovy jestvujúcich domov je potlačenie narastajúcej suburbanizácie, ktorá spotrebuje ďalšiu pôdu, ekologický aj ekonomický kapitál. Podporujeme pokrok a hľadáme riešenie pre využitie stavebného potenciálu, ktorý tu máme.
Back to Top